- Home
- Heizen
- Schornsteine
- Edelstahlschornsteine
- Jeremias Wandstütze & Querträger Typ III | l=750 mm
Jeremias Wandstütze & Querträger Typ III | l=750 mm
Jeremias Wandstütze & Querträger Typ III 750 mm zur Montage von Schornsteingrundplatten
1 - 3 Werktage** Versandgewicht:
10,00 kg
Produkt Details
Beschreibung
Jeremias Wandstütze & Querträger Typ III 750 mm
Mit der Jeremias Wandstütze & Querträger wird die Montage des Schornsteinfußes an einer Wand ermöglicht. Die Wandstütze Typ III macht einen Wandabstand von bis zu 590 mm möglich und ist durch die Fertigung aus Edelstahl sehr stabil und Langlebig. Wandstützen mit Querträgern werden oftmals benötigt um beispielsweise den Schornstein an überstehenden Dachflächen senkrecht vorbei zu führen ohne, dass dabei Bögen im eigentlichen System verbaut werden müssen.
Eigenschaften der Jeremias Wandstütze:
- kompatibel mit: DW-ECO 2.0 | DW-ECO 2.0 AL | DW-FU | DW-SILVER | DW-AL | DW-KL | DW-POWER
- Einsatzbereiche: Regelfeuerstätten für Öl-, Gas-, Festbrennstoffe ( naturbelassenes Holz, Torf, Koks, Kohle )
- Einsatztemperatur: bis 600°C
- Rußbrandbeständig: bis 1000°C
- Material außen: Edelstahl 1.4301 - Hochglanz
- Materialstärke Edelstahl: 0,5 mm
- einfache Steckverbindung
- rußbrandbeständig und feuchteunempfindlich
- CE Klassifizierung nach DIN EN 1856-1
maximale Wandabstände:
| Innenrohr Durchmesser | max. Wandabstand in mm |
| Ø 80 | 590 |
| Ø100 | 570 |
| Ø 130 | 540 |
| Ø 150 | 520 |
| Ø 160 | 525 |
| Ø 180 | 490 |
| Ø 200 | 470 |
| Ø 225 | 445 |
| Ø 250 | 420 |
| Ø 300 | 370 |
| Ø 350 | 320 |
| Ø 400 | 270 |
| Ø 450 | 220 |
| Ø 500 | 170 |
| Ø 600 | 85 |
Achtung: Bei Wandabständnen größer als 400 mm ist ein statischer Nachweis erforderlich, dieser muss seperat beauftragt werden.
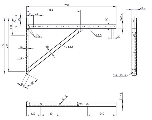
Zeichnung:
![]() |
Mehr Informationen
| Artikel Einheit | St |
|---|---|
| Abmessung in | mm |
| Länge | 750 |
| EAN | 4062852001693 |
| Design | sonstige |
| Farbe | edelstahl |
| Gewicht in kg | 10.00 |
| Lieferzeit | 1 - 3 Werktage** |
| DIN EN | 1856-1 zugelassen |
| Freistehbar | 3 m mit 2 Statischen Klemmbändern |
| Druckklasse | N1 (bis 100 Pa) |
| Rußbrandbeständig | Ja |
| Kondensatbeständig | Ja |
| Ausbrandbeständigkeit | bis 1.000°C |
| Doppelwandig | Nein |
| Herstellergarantie | 25 Jahre |
| Jeremias Elementschornstein-Systeme | Edelstahlschornstein doppelwandig |
| Jeremias System-Bezeichnung | DW-ECO 2.0, DW-ECO 2.0 AL, DW-FU, DW-SILVER, DW-AL, DW-KL |
Frage zum Produkt
Produkt: Jeremias Wandstütze & Querträger Typ III | l=750 mm
Downloads
Bewertungen
FAQ
Es sind leider keine FAQ´s für dieses Produkt vorhanden.
Sie könnten auch an folgenden Produkten interessiert sein
-
Jeremias Konsolbleche für Doppelwandige Edelstahlschornsteine | Wandabstand verstellbar von 250 - 360 mm
ab 94,95 € inkl 19% MwSt
-
Jeremias Konsolenblech für Doppelwandige Edelstahlschornsteine | Wandabstand verstellbar von 150 - 250 mm
ab 75,95 € inkl 19% MwSt
-
Jeremias Konsolenbleche für doppelwandige Edelstahlschornsteine | Wandabstand verstellbar von 50 - 150 mm
ab 59,95 € inkl 19% MwSt
-
Jeremias Wandstütze & Querträger Typ II 500 mm | Edelstahl
inkl 19% MwSt 190,00 € -
Jeremias Wandstütze & Querträger Typ I 350 mm | Edelstahl
inkl 19% MwSt 186,00 €

